úvod
byty na prodej
lokalita
galerie
standardy
postup při koupi
kontakt
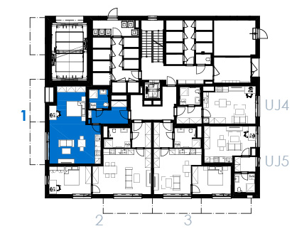
Patro
1.NP
2.NP
3.NP
4.NP
volné: / rezervace: / prodané:
Jednotka
1.1
1.2
1.3
UJ.4
UJ.5
Volný
1+KK / 51.1m
2
Zpět na výběr
Ozn.
Účel místnosti
Plocha
1.1.01
Předsíň
7.7m
2
1.1.02
Koupelna + WC
4.3m
2
1.1.03
Plocha celkem
37.1m
2
Plocha příček
2.0m
2
Podlahová plocha
51.1m
2
8 315 000 Kč
Platební podmínky
Karta bytu (PDF)
Kontakt
standardy pro byt
PDF Katalog
pro zobrazeni klikni
PTÁČEK - Koupelny, obklady, dlažby
PDF Katalog
pro zobrazeni klikni
VAŠÍN podlahy
PDF Katalog
pro zobrazeni klikni
PRIX Morava - dveře
Kontaktujte mě
Jitka Loupová
loupova@imosdevelopment.cz
+420 724 058 733
Jméno
(Required)
Telefon
(Required)
Zpráva
Consent
(Required)
Souhlasím se zpracováním
osobních údajů
.
CAPTCHA
Webdesign by GRAFIQUE